Звонок по России беслатный
Назад
Поможем с выбором
Расскажите, что ищите.
Предложу интересные варианты.
Павлов Александр
консультант
по недвижимости
Назад
Ваши данные успешно приняты!
Мы свяжемся с вами в ближайшее время
Отправить повторно

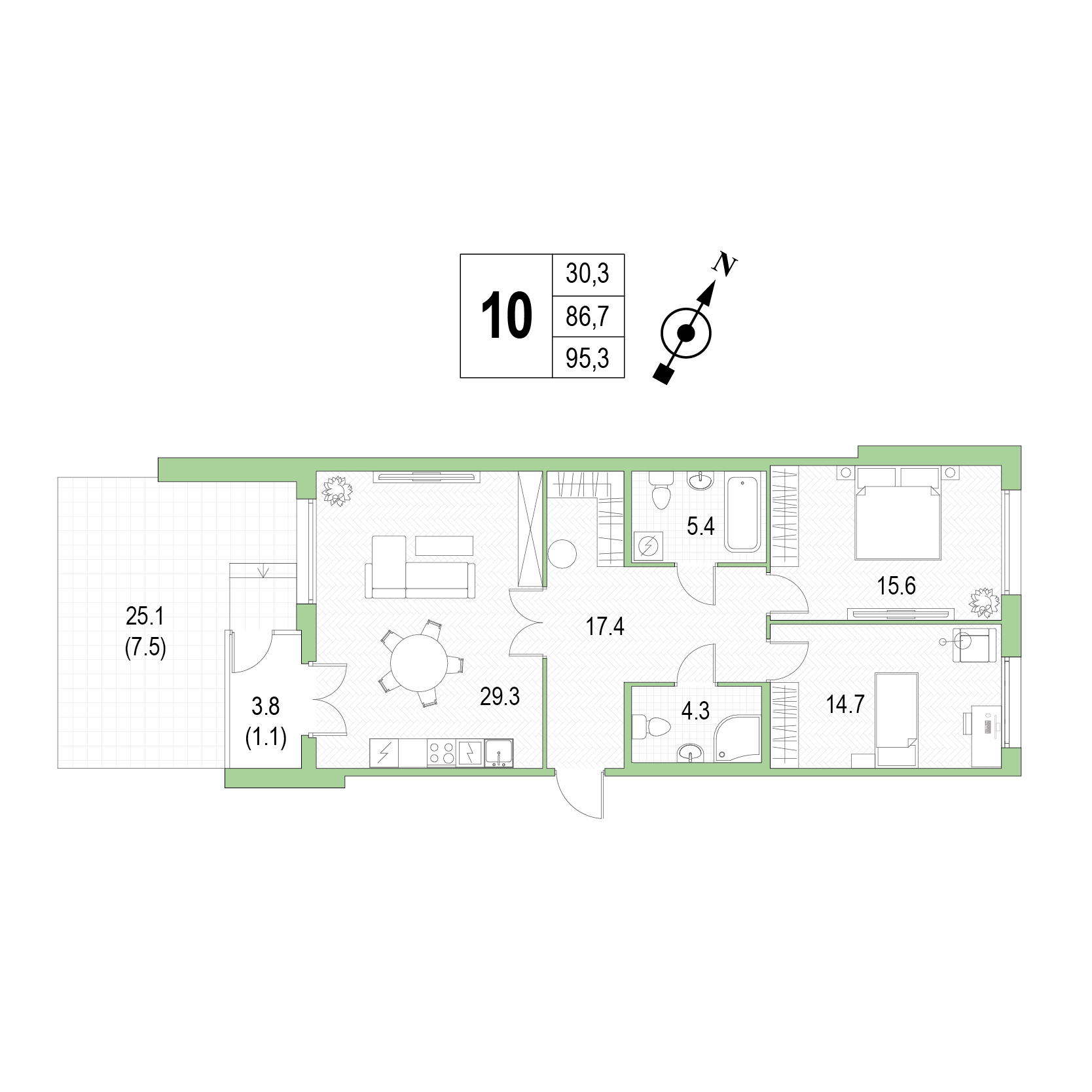
Двухкомнатная квартира №10 «Riviera club» 1 корпус очередь S=95.3 м2

Назовите номер квартиры при звонке в отдел продаж
Свободные места
в паркинге
В избранное Напечатать Свободные места
в паркинге
95.3 общая площадь, м2
30.3 жилая, м2
29.3 кухня, м2
Riviera club
Сдан передача ключей
1/4 этаж
не последний этаж с террасой видовая окна во двор окна на улицу гардеробная вид на залив высокие потолки малоэтажный комплекс бизнес-класс большой балкон от 3 кв.м. двусторонняя квартира

Красивая двухкомнатная квартира №10 . К плюсам квартиры относятся: видовая, окна во двор, окна на улицу, вид на залив.

Квартира удобно располагается в привлекательном месте неподалёку от Дудергофского канала в окружении богатой инфраструктуры. К вашим услугам службы быта, кафе, рестораны, спортивные залы, супермаркеты, торгово-развлекательный центр. Вы сможете совершать прогулки в «зелёных» зонах.

Недвижимость располагается в жилом комплексе Riviera club по адресу: Санкт-Петербург, ул. Адмирала Трибуца / пр. Героев. Размер квартиры: общая площадь - 95.3 м², жилая площадь - 30.3 м², кухня - 29.3 м². Срок сдачи: Сдан.

Для получения информации о квартире №10 позвоните нам по телефону (812) 457 1 777 или закажите обратный звонок – менеджер перезвонит в течение нескольких минут.

Квартира продана
Запрос стоимости квартиры
Укажите мобильный телефон и почту
Заказ обратного звонка

На любой будний день
с 9:00 до 18:00

Также смотрите
контакты

Поможем с выбором квартиры

Ищете квартиру мечты?
Готовы предложить самые интересные варианты.
Павлов Александр консультант по недвижимости
Изображение
Позвонить
Доехать