Звонок по России беслатный
Назад
Поможем с выбором
Расскажите, что ищите.
Предложу интересные варианты.
Тамахин Антон
консультант
по недвижимости
Назад
Ваши данные успешно приняты!
Мы свяжемся с вами в ближайшее время
Отправить повторно

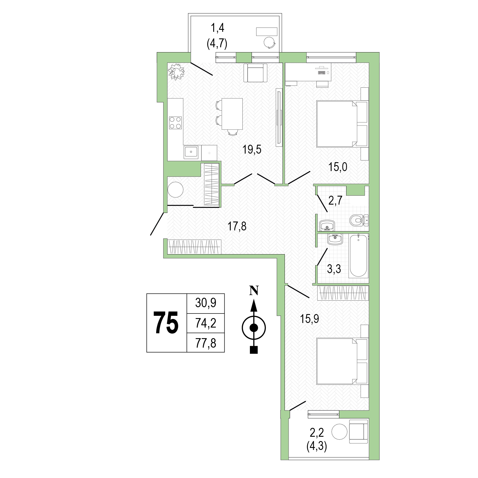
Двухкомнатная квартира №75 «Lotos club» 1 корпус очередь S=77 м2

Назовите номер квартиры при звонке в отдел продаж
Свободные места
в паркинге
В избранное Напечатать Свободные места
в паркинге
77 общая площадь, м2
30 жилая, м2
19 кухня, м2
Lotos club
Сдан передача ключей
5/8 этаж
не первый этаж не последний этаж окна во двор окна на улицу совмещенный с/у гардеробная вид на залив два балкона высокие потолки малоэтажный комплекс бизнес-класс большая кухня-гостиная

Красивая двухкомнатная квартира бизнес-класса №75 в малоэтажном комплексе. К преимуществам квартиры относятся: не первый этаж, не последний этаж, окна во двор, окна на улицу, совмещенный с/у, гардеробная, вид на залив, два балкона, высокие потолки, малоэтажный комплекс, бизнес-класс, большая кухня-гостиная.

Квартира удобно располагается в прекрасном месте рядом с ЗСД в окружении богатой инфраструктуры. К вашим услугам службы быта, кафе, рестораны, спортивные залы, супермаркеты, торгово-развлекательный центр. Вы сможете совершать прогулки в «зелёных» зонах.

Недвижимость располагается в жилом комплексе Lotos club по адресу: Санкт-Петербург, проспект Патриотов, 35. Размер квартиры: общая площадь - 77 м², жилая площадь - 30 м², кухня - 19 м². Срок сдачи: Сдан.

Для получения информации о квартире №75 позвоните нам по телефону (812) 457 1 777 или оформите заявку на обратный звонок – менеджер перезвонит в течение нескольких минут.

Квартира продана
Запрос стоимости квартиры
Укажите мобильный телефон и почту
Заказ обратного звонка

На любой будний день
с 9:00 до 18:00

Также смотрите
контакты

Поможем с выбором квартиры

Ищете квартиру мечты?
Готовы предложить самые интересные варианты.
Тамахин Антон консультант по недвижимости
Изображение
Позвонить
Доехать